PROJECT

T|05-2209-759
L|@littlehousemade
F|05-2761-455
E|littlehousemade@gmail.com
© Copyright – 曉屋制研所 | design by Morcept
PROJECT
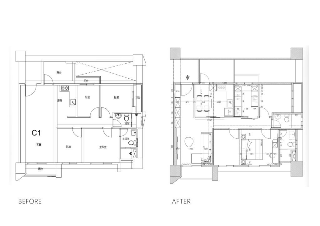
日系風格為主題的室內設計方案,將木質調與鐵件元素巧妙融合,
呈現出溫暖且充滿活力的空間氛圍。
木質材料帶來了自然的溫度,散發柔和的質感,營造出舒適放鬆的生活環境。
而黑色鐵件的加入,則注入了現代感和俐落的線條美,為空間增添層次與個性。
整體設計以簡潔明亮為基調,搭配一些充滿生命力的綠植和柔和的燈光,
讓人在忙碌中也能感受到大自然的溫暖與舒心,
打造出一個適合休憩、工作的多功能空間,激發每日的活力與靈感。
| 主要設計 | 黃伊瑜 | 房屋類型 | 公寓-新成屋 |
| 設計坪數 | 室內15.5坪 | 建材說明 | Blum五金、川湖滑軌。 |
| 空間格局 | 3房1廳2衛 | 完工年份 | 2024 |

T|05-2209-759
L|@littlehousemade
F|05-2761-455
E|littlehousemade@gmail.com
© Copyright – 曉屋制研所 | design by Morcept
